Interactive
Pier West
BOSA DEVELOPMENT
Solution
LOCATION
New Westminster, BC
Type
Residential Sales
Team
MLA
Produced by Designstor
Development by Franco Capella, Creative Direction
Produced by Designstor
Development by Franco Capella, Creative Direction
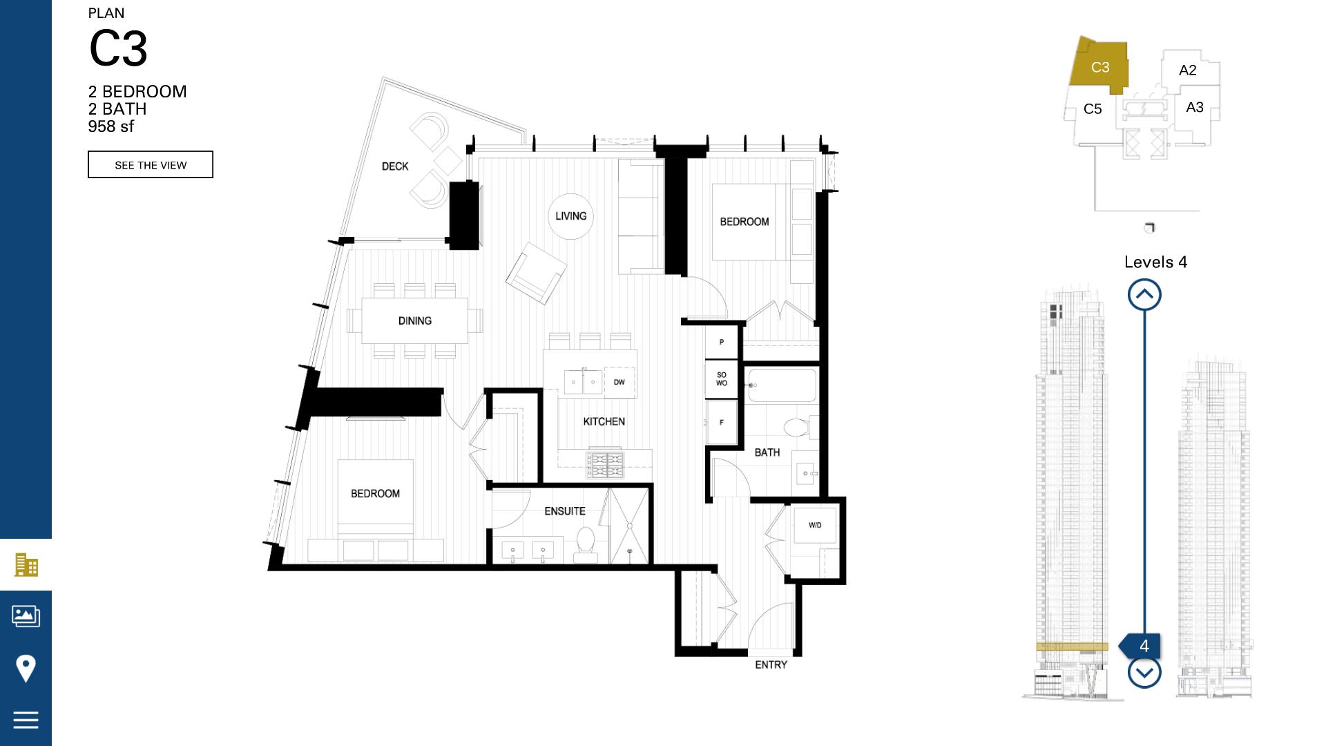
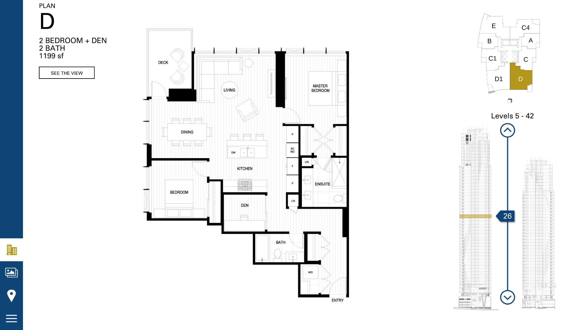
A seamless sales center experience, equipped with four interactive touchscreens that can illuminate suites on the architectural model, complemented by two additional portrait-oriented touchscreens for further exploration of plans and amenities.

Interactive
Touchscreen
Four landscape-oriented touchscreens, two on each side of the architectural model, enable users to explore units and amenities. As units are selected on the touchscreens, the corresponding suite light illuminates on the model.








Interactive
Vertical Touchscreen
Two additional portrait-oriented touchscreens are available in the sales gallery, offering the same informational access as the landscape displays, albeit without lighting integration on the architectural model. These screens enable users to simultaneously view plans and their respective views.







